【BEFORE & AFTER 】(工程前後對比、3D設計圖和實景對比)
很多人認為,3D設計圖只是一個意向圖,最後實際裝修出來的效果可能會大相逕庭。也許,市面上大多公司確實會出現「理想與現實差距甚大」的弊病,但藝豐絕不會允許這種情況發生。
接下來會以數個工程單位為例,從一開始的平面圖設計、3D效果圖設計、工程前、工程進行中、工程完成的實景照片以及各種工藝影片真實呈現給各位看,絕無P圖,大家可以對比一下工程前後以及設計圖和完工實景照片的差別。
屯門黃金海岸 BEFORE & AFTER

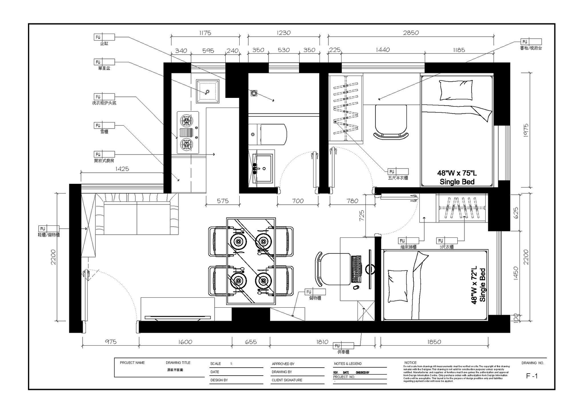
平面圖



工程前





工程進行中
3D圖
工程完成後實景照片

3D圖
工程完成後實景照片
3D圖
工程完成後實景照片
3D圖
工程完成後實景照片


3D圖
工程完成後實景照片
3D圖






3D圖




北角華禮大廈BEFORE & AFTER




























大埔海日灣BEFORE & AFTER






















沙田新翠邨新儀樓公屋BEFORE & AFTER


















何文田皓畋 (全新樓盤,重新間隔、現場製造全屋傢俬、雲石牆、油漆工程) BEFORE & AFTER





















元朗錦繡花園 BEFORE & AFTER
















保護工程進行中。










替客人申請100A大電(中華電力公司)
掘地進行中。一站式服務就是這麼方便,客人什麼都不用擔心。
大門安裝電動捲閘中。一站式服務就是這麼方便,客人什麼都不用擔心。


























就連CCTV,我們都會為您安裝好。
草地花兒也會為您整理好。
荃灣海之戀 BEFORE & AFTER(全新樓盤,只做全屋傢俬和油漆)




















長沙灣凱樂苑BEFORE & AFTER
































荃灣蔚景花園BEFORE & AFTER








































灣仔全豐樓BEFORE & AFTER

















油麻地 TAMIYA 香港旗艦店 x 偉高模型 BEFORE & AFTER



































灣仔全豐樓BEFORE & AFTER(另一戶)












五十年樓齡灣仔全豐樓是出名「 難搞」的樓宇。戶型打斜難以佈局、極多橫樑粗柱、原先樓宇結構問題造成牆身天花需修復、重新間隔等,藝豐一一為您解決!




























馬鞍山翠擁華庭 BEFORE & AFTER









































奧運帝柏海灣BEFORE & AFTER



































沙田帝堡城BEFORE & AFTER































荃灣萬景峯BEFORE & AFTER






































荃灣海之戀 BEFORE & AFTER















































元朗錦繡花園F段 BEFORE & AFTER























































沙田駿景園 BEFORE & AFTER
















































沙田畢架‧金峰 BEFORE & AFTER

















































紅磡半島豪庭 BEFORE & AFTER















































荃灣愉景新城 BEFORE & AFTER






























元朗錦繡花園M段 BEFORE & AFTER










































































































東涌居屋裕雅閣BEFORE & AFTER































錦繡花園荔枝南路 BEFORE & AFTER













































































大埔太和邨亨和樓 BEFORE & AFTER


































荃威花園 BEFORE & AFTER


































